The Lord has done so much! Thank you for your prayers! This was a massive project involving thousands of volunteer man hours and a lot of prayer. We are so thankful to be in our new facilities. Click on one of the links below to see the gallery with captions for that phase.
Foundation Phase.
Framing Phase.
Framing Phase 2.
Outside Finishing Phase
Outside Finishing Phase 2
Mid-January Progress
February Progress
March Progress
Spring Progress
Early April Progress
Mid April Progress
Early May Progress
Mid May Progress
June Progress
July Progress
Finishing Touches
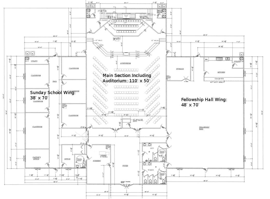
Here’s a floor plan of what we’ve built. Click to enlarge.

Just visited your website to get a prayer request to share with our people. Excited to see the contruction going on. We will be praying that things move smoothly and quickly and funds will continue to come in. God bless you in your work and ministry.
Henry Horne
Thank you, Pastor Henry!
We so appreciate the prayers! Thank you, and thanks to your church folks!
God bless! Pastor Bill & Christy
Praise the LORD!!!! What are the dimensions of the building? What a wonderful answer to prayer!!!!! We love you and are so very blessed to be a small part of your mission in RI.
Great job!!!
Sunday School Wing: 38′ x 70′
Auditorium Wing: 110′ x 50′
Fellowship Hall Wing: 48′ x 70′
We’ll post the floor plan soon so you can see the layout. Love you, too, Mom & Dad! We’re thankful for your prayers and support! Christy
Thanks for the floor plan. It helps with the visualization. We will continue to pray!!!
Hey, guys this looks really great and I’m so excited for you. Looks like it will seat a lot of people.
Love and Prayers,
Pastor Carl DeMerchant
Lake Road F.W.B.
Thanks, Bro. Carl! We appreciate your prayers!
My parents, Don & Marie, are there with y’all. They are both so excited to help with the construction of your new church building! Please take good care of them for us (I know you will).
Joanna
Yes, we are, Joanna. They are taking good care of us, too! They are such a blessing!
Hey congratulations on getting started on the actual building! Good to see pictures of the Church Family. Special hello to Pastor Bill, Christy and the Reynolds. Love you guys and God Bless.
Hey, Martin! We miss you! Thanks for your encouragement and continued prayers! God Bless, Pastor Bill & Christy & family
Praise the Lord! It is so great to see the progress. We rejoice to see these days, and will be praying with you as you work to see it completed. Love Y’all!
Why don’t you guys come up and help??? 🙂 Hope to see you soon! Love you guys, too!
Looks great!
Hey Bro. Bill and Christy,
The Church looks great, I cant wait to walk in and worship with you and your church family. Many prayers answered…Congrats! Love and prayers The Murrays..LFWBC
Thanks, Bro. Rick & Sis. Karen! We can’t wait to have you come down! Thanks for your continued prayers & support! Love, the Reynolds
I am so happy I can finally see whats going on!! Poppy has been telling me about all the progress and I am so excited to see it when I go to Rhode Island this winter! I am happy for all of you 🙂
I’m glad, too, Erika! Say “hello” to the sunshine for me out there in California!
Wow! You’ve come so far in so many years. Will you create a time capsule to be opened in 25/50 years? May Jesus’ love fill this facility and property so much that people are overwhelmed when they visit… whether the first time or each week. =D